Beschrijving
Op een toplocatie bieden wij dit karaktervolle en recent volledig gerenoveerde kleinschalig appartementencomplex met 4 appartementen aan, een boetiekresidentie in het hart van Valkenburg, omgeven door terrassen, cafés en wandelpaden in het Geuldal.
Het appartement is volledig gerenoveerd, het enige wat je nog zelf moet doen is de keuken van je dromen uitzoeken. Het appartement beschikt over een eigen balkon en een ruime privéberging in het souterrain met toegang tot de gezamenlijke fietsenstalling.
De appartementen liggen op slechts een steenworp afstand van terrasjes, boetiekjes en spa's, met de wandel- en fietsroutes van het Geuldal vrijwel voor de deur – ideaal voor liefhebbers van rust en buitenleven.
Hoogtepunten
• Onlangs gerenoveerd (2025)
• Privé buitenruimte voor elk appartement
• Grote privébergingen (ca. 14m²)
• Energielabel A
• Op enkele minuten van cafés, terrassen en wandelpaden in het Geuldal
• Keuken naar eigen smaak te kiezen
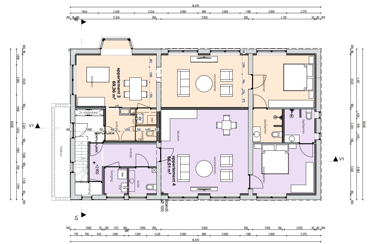
Indeling
Begane grond:
Gemeenschappelijke hal, entree appartement 1 en 2 en trap naar appartement 3 en 4 op de verdiepingen.
Eerste verdieping
Appartement 4 - Twee etages maisonette met twee badkamers en balkon — privé en ruim.
(Paarse appartement op de tekening)
Ruime entree (ca. 7 m²) met privé toilet (ca. 3 m²) en een grote berging met witgoed aansluiting.
Het appartement beschikt over woonkamer met open keuken deze is ontworpen om comfortabel een L-vormige keuken indeling te kunnen huisvesten welke naadloos overgaat in de lichte en ruime woonkamer (ca. 33 m²). Ook hier ligt de slaapkamer (ca. 13,60 m²) aan de achterzijde van het pand gesitueerd. Vanuit de slaapkamer heb je toegang tot de nieuw afgewerkte moderne badkamer (ca. 7 m²).
Bij de gemeente is het mogelijk een vergunning aan te vragen waarmee je jouw auto in de directe omgeving van je woning mag parkeren.
Tweede verdieping
Vanuit de hal is er toegang tot de 2de etage via een trap. De 2de verdieping is enkel voor appartement 4.
Op de 2de verdieping is een 2de slaapkamer (ca. 14 m²) gesitueerd met een 2de badkamer (ca. 3 m²) en een zeer ruime overloop (ca. 20 m²) te gebruiken als hobbykamer of kantoor.
Overige verdiepingen
Souterrain
De berging (ca. 14 m²) in het souterrain biedt veilige opslagruimte voor e-bikes, wijn, seizoensspullen of hobbybenodigdheden — een uniek voordeel in Valkenburg.
Tuin
Het appartement (ca. 6 m²) beschikt over een balkon aan de voorzijde.
Bijzonderheden
Vraagprijs appartement 4: €399.000,- k.k.
- Energielabel A
- Het appartement is recent volledig gerenoveerd
- Keuken dient zelf geplaatst te worden
- Bouwjaar 1950, gesplitst in 2025
- Kunststof kozijnen met HR++ beglazing
- Voorzien van inbraakwerend hang- en sluitwerk
- Er is parkeergelegenheid op het terrein en d.m.v. parkeervergunningen
- De V.v.E. wordt bij de verkoop geformaliseerd, waarbij de maandelijkse bijdrage gezamenlijk wordt vastgesteld
Wij nodigen u van harte uit om een privébezichtiging te plannen om de sfeer, het licht en de unieke buitenruimte van de woning te ervaren.
De waarborgsom of bankgarantie bedraagt 10% van de koopsom. De waarborgsom of bankgarantie dient tegelijk met het verlopen van de ontbindende voorwaarden gestort te zijn jegens de betrokken notaris. Indien er geen sprake is van ontbindende voorwaarden, zal het bedrag binnen twee weken na ondertekening van de koopovereenkomst moeten worden gestort op de derdenrekening. Over de waarborgsom dan wel bankgarantie wordt door de verkoper geen rente vergoed.
Corio Makelaars B.V. heeft met de meeste zorg informatie samengesteld doch kunnen we ten aanzien van de juistheid van deze gegevens geen aansprakelijkheid aanvaarden. Aan deze informatie kunnen geen rechten worden ontleend.