Beschrijving
Welkom in deze ruime twee-onder-een-kapwoning, gelegen op een rustige en geliefde locatie in Posterholt. Aan de voorzijde geniet u van een weids uitzicht, terwijl de royale tuin rondom de woning volop ruimte biedt om te ontspannen. Met 4 mogelijkheid tot 5 slaapkamers, een carport, garage en tal van mogelijkheden om deze keurige woning naar eigen smaak te moderniseren, is dit het ideale huis voor wie op zoek is naar rust, ruimte en potentie.
Indeling
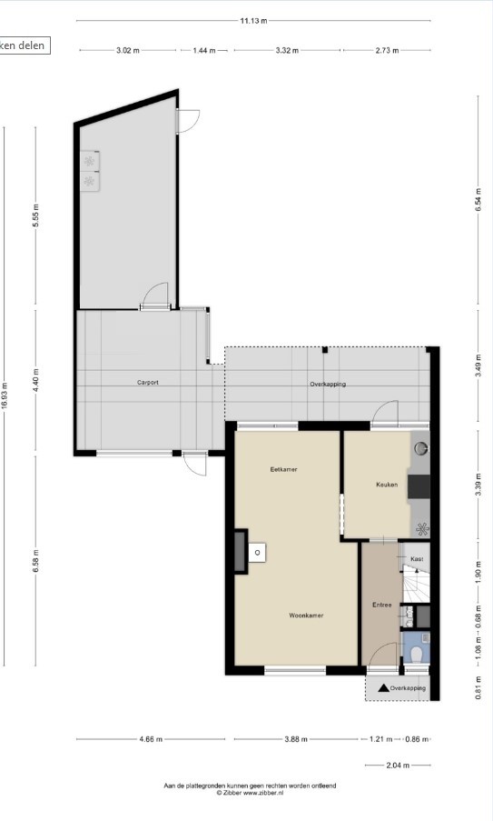
Via de overdekte entree komt u in de hal met tegelvloer, meterkast, trapkast en toiletruimte met wandcloset en fonteintje. Vanuit de hal is tevens de kruipruimte bereikbaar, welke zich onder de gehele woning bevindt.
De sfeervolle woonkamer beschikt over een schouw, ideaal voor het plaatsen van een hout- of pelletkachel, en een mooie eiken vloer die zorgt voor een warme uitstraling. De halfopen keuken in rechte wandopstelling is voorzien van diverse inbouwapparatuur, waaronder een 4-pits keramische kookplaat, afzuigkap, oven en koelkast. Vanuit de keuken is toegang tot het brede overdekte terras, waar het heerlijk vertoeven is in alle seizoenen.
Eerste verdieping
Op de eerste verdieping bevinden zich drie royale slaapkamers. De badkamer is uitgerust met een ligbad, tweede toilet en wastafel.
Tweede verdieping
De tweede verdieping is bereikbaar via een vaste trap. Op de overloop is aan een zijde de opstelplaats voor witgoed en de cv-installatie en aan de andere zijde bergruimte onder de dakschuinte. De royale zolderkamer kan uitstekend dienen als vierde en/of vijfde slaapkamer en beschikt eveneens over veel bergruimte.
Tuin
De verzorgde achtertuin biedt volop privacy en beschikt over een overkapping (geplaatst in 2023), ideaal voor gezellige avonden buiten. Aan de voorzijde is een lange, brede oprit met plaats voor meerdere auto’s. Naast de woning bevindt zich een carport met elektrische sectionaalpoort en zij-ingang. Aansluitend ligt de garage, welke thans voorzien is van een houten raamwerk met deur in de voormalige poortopening. Dit houtwerk is eenvoudig te verwijderen waardoor de garage weer met auto bereikbaar is. Achterin de garage is tevens een tuindeur aanwezig.
Bijzonderheden
- De woning is traditioneel gebouwd (baksteen buitenblad, spouw en binnenblad met stucwerkafwerking) en voorzien van een zadeldak met pannen en enkele platte daken met bitumineuze dakbedekking. Isolatie conform bouwjaar 1974.
- Houten kozijnen met enkel glas en kunststof kozijnen met dubbel glas (Hr ++) en rolluiken
- Meterkast (7 groepen, aardlekschakelaar, slimme meters voor gas- en elektra en watermeter)
- Cv-combiketel Remeha Avanta (bouwjaar 2019, eigendom)
De waarborgsom of bankgarantie bedraagt 10% van de koopsom. De waarborgsom of bankgarantie dient tegelijkertijd met het verlopen van de ontbindende voorwaarden gestort te zijn jegens de betrokken notaris. Indien er geen sprake is van ontbindende voorwaarden, zal het bedrag binnen twee weken na ondertekening van de koopovereenkomst moeten worden gestort op de derdenrekening. Over de waarborgsom dan wel bankgarantie wordt door de verkoper geen rente vergoed.
Corio Makelaars B.V. heeft met de meeste zorg informatie samengesteld doch kunnen we ten aanzien van de juistheid van deze gegevens geen aansprakelijkheid aanvaarden. Aan deze informatie kunnen geen rechten worden ontleend.