Beschrijving

Welkom in de Kerkstraat 38 in het geliefde Ubachsberg, in deze verrassend ruime (ca. 176m² woonoppervlakte) nagenoeg volledig gemoderniseerde tussenwoning waar je je direct thuis zult voelen. Gelegen in een karakteristiek pand dat ooit dienst deed als postkantoor, biedt dit charmante huis een perfecte mix van historische elementen en modern comfort.
Gelegen op een perceel van maar liefst 423 m² biedt deze woning o.a. 3 slaapkamers, een charmante woonkamer, 2 badkamers, extra ruime garage met lange oprit, ruime tuin (ca. 195m²) en een tweede verdieping met een compleet appartement, ideaal als gastenverblijf of studio. 20 zonnepanelen maken het plaatje compleet.

Ubachsberg staat bekend om haar rustige, groene karakter. Hier profiteer je van de gemoedelijke sfeer en toch zijn alle belangrijke voorzieningen – scholen, winkels en uitvalswegen – binnen handbereik.

Indeling

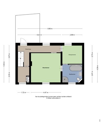
Ruime hal met moderne plavuizenvloer, meterkast, praktische garderobe nis en trappenhuis. Vanuit de hal heeft u toegang tot de woonkamer, de keuken en de kelders.

De ruime woonkamer, gelegen in het voormalige postkantoor. De toon wordt gezet door een authentieke stenen buitenmuur kenmerkend voor deze omgeving. Dit zorgt voor een bijzondere, karaktervolle sfeer. De woonkamer is voorzien van een nieuwe houthaard en een fraaie grenen houten plankenvloer. Vanuit de woonkamer is toegang tot de keuken en het gezellige binnenhofje.

De gesloten keuken (2018) is uitgerust met een inductiekookplaat, RVS-afzuigkap, koelkast met vriesvak, vaatwasser en oven. Vanuit de keuken heeft u eveneens uitzicht op het binnenhofje.
Aansluitend ligt een aanbouw: vanuit het portaal met daglicht middels een lichtkoepel, is het toilet, de voormalige badkamer (thans praktische bergruimte) en een handige wasruimte bereikbaar. Vanuit het portaal is tevens de tuin bereikbaar.

Eerste verdieping

De overloop biedt toegang tot twee slaapkamers beiden voorzien van een vinylvloer.
Slaapkamer 1 is ruim opgezet (ca. 19 m²) en beschikt over een ensuite badkamer. Deze badkamer is voorzien van een ligbad, wastafel, tweede toilet, hoekdouche en designradiator. De badkamer is vanuit beide slaapkamers te bereiken.
Slaapkamer 2 (ca. 8 m²).
Tweede overloop met cv-ruimte en vaste trap naar tweede verdieping.

Tweede verdieping

Overloop met toegang tot het appartement.
Hier bevindt zich een verrassend complete leefruimte met een slaapkamer (ca. 13 m²), een knus zitgedeelte met kitchenette en een eigen badkamer met douche, wastafel en 3de toilet.
Perfect als gastenverblijf, studio of rustige werkplek. In de dakschuintes zijn handige bergingen gerealiseerd.

Overige verdiepingen

Provisiekelder onderverdeeld in twee ruimtes (circa 12 m² en 9 m²) met de watermeter.

Tuin

De tuin (ca.195m²) biedt veel privacy, er is een gazon, diverse fruitboompjes en ruimte voor kleinvee en een moestuin.
De garage (ca. 37 m²), oorspronkelijk een voormalig pomphuis van de brandweer, is zowel via de tuin als via de oprit te bereiken middels een houten toegangspoort. 
De zeer ruime oprit (ca. 13.5 x 3.44 m.) biedt plaats aan meerdere auto’s.

Bijzonderheden

- De huidige bewoners hebben deze ruime woning vanaf 2015 grotendeels gerenoveerd o.a.:
- Nieuwe waterleidingen
- Centrale verwarming aangelegd
- Nieuwe meterkast
- Nagenoeg geheel v.v. strak stucwerk
- 12 zonnepanelen zijn gehuurd, 8 zonnepanelen zijn eigendom
- Nagenoeg geheel v.v. kunststof raamkozijnen met dubbel glas (op 1 raamkozijn na)

De waarborgsom of bankgarantie bedraagt 10% van de koopsom. De waarborgsom of bankgarantie dient twee weken na het verlopen van de ontbindende voorwaarden gestort te zijn jegens de betrokken notaris. Indien er geen sprake is van ontbindende voorwaarden, zal het bedrag binnen twee weken na ondertekening van de koopovereenkomst moeten worden gestort op de derdenrekening. Over de waarborgsom dan wel bankgarantie wordt door de verkoper geen rente vergoed.

Corio Makelaars B.V. heeft met de meeste zorg informatie samengesteld doch kunnen we ten aanzien van de juistheid van deze gegevens geen aansprakelijkheid aanvaarden. Aan deze informatie kunnen geen rechten worden ontleend.

Kenmerken