Beschrijving

Op een toplocatie bieden wij dit karaktervolle en recent volledig gerenoveerde kleinschalig appartementencomplex met 4 appartementen aan, een boetiekresidentie in het hart van Valkenburg, omgeven door terrassen, cafés en wandelpaden in het Geuldal.
Elk appartement is volledig gerenoveerd, het enige wat je nog zelf moet doen is de keuken van je dromen uitzoeken.
Alle appartement beschikt over een eigen buitenruimte en een ruime privéberging in het souterrain met toegang tot de gezamenlijke fietsenstalling.
 
Appartement 1: Appartement (ca. 69 m²) met berging (ca. 19 m²) ,voortuin (ca. 37 m²) en privé parkeerplaats (ca. 12m²)
Appartement 2: Appartement (ca. 65 m²) met berging (ca. 19 m²) en voortuin (ca. 18 m²)
Appartement 3: Appartement (ca. 69 m²) met berging (ca. 37m²) en achtertuin (ca. 44 m²)
 
De appartementen liggen op slechts een steenworp afstand van terrasjes, boetiekjes en spa's, met de wandel- en fietsroutes van het Geuldal vrijwel voor de deur – ideaal voor liefhebbers van rust en buitenleven.

Hoogtepunten
•    Onlangs gerenoveerd (2025)
•    Privé buitenruimte voor elk appartement
•    Grote privébergingen (19–37 m²)
•    Voorlopig Energielabel A
•    Op enkele minuten van cafés, terrassen en wandelpaden in het Geuldal
•    Keuken naar eigen smaak te kiezen

Let op: de vraagprijs is per appartement verschillend.

Indeling

Begane grond:
Gemeenschappelijke hal, entree appartement 1 en 2 en trap naar appartement 3 en 4 op de verdiepingen.
 
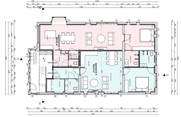
Appartement 1- Gelijkvloers wonen met de grootste privétuin — ideaal om buiten te eten.
(Roze appartement op de tekening)
Entree, privé toilet.
Stap binnen in de ruime woonkamer met open keuken (ca. 39 m²). In de keuken is plaats voor een groot kookeiland en de erker zorgt voor een gezellige sfeer. De ruimte is helemaal open en staat direct in verbinding met de woonkamer. Daarnaast is er een praktische aparte bergruimte ingericht voor de wasmachine en extra bergruimte. De slaapkamer (ca. 14m²) is gesitueerd aan de achterzijde van het gebouw. Via de slaapkamer heb je direct toegang tot de nieuw afgewerkte moderne badkamer (ca. 4 m²).
Daarnaast beschikt dit appartement over een eigen privé-parkeerplaats. Deze is gelegen aan de voorzijde van het appartement.
 
Appartement 2 - Compact en licht met een intieme voortuin in de ochtendzon.
(Blauwe appartement op de tekening)
Entree, grote bergruimte en privé toilet.
Woonkamer met open keuken welke ontworpen is om ruimte te bieden aan een L-vormige keukenindeling welke naadloos overgaat in de lichte en ruime woonkamer (ca. 33 m²). Ook hier ligt de slaapkamer (ca. 14 m²) aan de achterzijde van het pand gesitueerd. Vanuit de slaapkamer (ca. 14 m²) heb je direct toegang tot de nieuw gerealiseerde moderne badkamer (ca. 4 m²).
Voor appartement 2 bestaat de mogelijkheid om tegen meerprijs een privéparkeerplaats te realiseren op de locatie van de tuin.

Eerste verdieping

Overloop met trappenhuis en toegang tot appartement 3 en 4.

Appartement 3 - Tuin op het westen met ruime privéopslagruimte van 37 m², ideaal voor e-bikes, hobby's of wijn.
(Beige appartement op de tekening)
Entree met privé toilet.
Open keuken (ca. 18 m²) met erker en mogelijkheid tot kookeiland aansluitend ligt de woonkamer (ca. 20 m²).
De slaapkamer (ca. 14 m²) is aan de achterzijde van het gebouw gesitueerd. Via de slaapkamer heb je direct toegang de nieuw gerenoveerde moderne badkamer (ca. 4 m²).
Je kunt bij de gemeente een parkeervergunning aanvragen zodat je jouw auto dichtbij de woning kunt parkeren.

Overige verdiepingen

Souterrain
Bijzonder ruime bergingen (tot 37 m²) bieden veilige opslagruimte voor e-bikes, wijn, seizoensspullen of hobbybenodigdheden — een uniek voordeel in Valkenburg.

Appartement 1: ca. 19 m²
Appartement 2: ca. 19 m²
Appartement 3: ca. 37 m²

Tuin

Elke woning heeft zijn eigen buitenruimte — van tuinen met ochtendzon, ideaal voor het ontbijt, tot tuinen op het westen, perfect voor avondlicht en diners in de open lucht.

Appartement 1 (ca. 50 m²) heeft een tuin aan de voorzijde.
Appartement 2 (ca. 18 m²) beschikt eveneens over een tuin aan de voorzijde.
Appartement 3 (ca. 44 m²) heeft een aangename tuin aan de achterzijde.

Bijzonderheden

Vraagprijs appartement 1: €309.000,- k.k.
Vraagprijs appartement 2: €295.000,- k.k.
Vraagprijs appartement 3: €315.000,- k.k.

- Voorlopig energielabel A
- Alle appartementen zijn recent volledig gerenoveerd
- Keukens dienen zelf geplaatst te worden
- Bouwjaar 1950, gesplitst in 2025
- Kunststof kozijnen met HR++ beglazing
- Voorzien van inbraakwerend hang- en sluitwerk
- Er is parkeergelegenheid op het terrein en d.m.v. parkeervergunningen
- De V.v.E. wordt bij de verkoop geformaliseerd, waarbij de maandelijkse bijdrage gezamenlijk wordt vastgesteld

Wij nodigen u van harte uit om een privébezichtiging te plannen om de sfeer, het licht en de unieke buitenruimtes van elke woning te ervaren.

De waarborgsom of bankgarantie bedraagt 10% van de koopsom. De waarborgsom of bankgarantie dient tegelijk met het verlopen van de ontbindende voorwaarden gestort te zijn jegens de betrokken notaris. Indien er geen sprake is van ontbindende voorwaarden, zal het bedrag binnen twee weken na ondertekening van de koopovereenkomst moeten worden gestort op de derdenrekening. Over de waarborgsom dan wel bankgarantie wordt door de verkoper geen rente vergoed.

Corio Makelaars B.V. heeft met de meeste zorg informatie samengesteld doch kunnen we ten aanzien van de juistheid van deze gegevens geen aansprakelijkheid aanvaarden. Aan deze informatie kunnen geen rechten worden ontleend.

Kenmerken