Beschrijving

Deze goed onderhouden, geschakelde uitgebouwde twee-onder-een-kapwoning ligt op een geliefde locatie en staat op een ruim perceel van maar liefst 271 m². De royale achtertuin van circa 96 m² biedt volop mogelijkheden: van ontspannen tuinieren tot buiten spelen met de kinderen of lange zomeravonden met vrienden aan de barbecue. Hier creëer je moeiteloos jouw eigen buitenparadijs.

Binnen word je verrast door de lichte T-vormige woonkamer, waar grote raampartijen zorgen voor een prettige lichtinval. De woning vormt een fijne basis die je stap voor stap naar eigen smaak kunt moderniseren en personaliseren.

Een absoluut pluspunt is de garage met aangebouwde carport en lange oprit. Ideaal voor het veilig parkeren van je auto, extra bergruimte of zelfs het realiseren van een hobby- of klusruimte. De achtertuin is bovendien heerlijk beschut, waardoor je volop geniet van rust, privacy en groen.

Graafstraat 3 is een ideale woning voor starters of jonge gezinnen die comfortabel willen wonen op een centrale en prettige locatie. Sfeer, ruimte en potentie komen hier samen – een kans die je niet wilt missen!

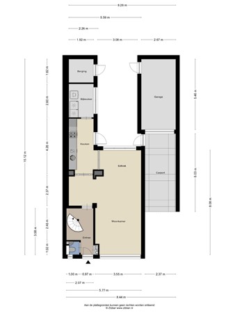
Indeling

Bij binnenkomst word je verwelkomd in de hal met plavuizen vloer, meterkast, toiletruimte met wandcloset en fonteintje, en een stijlvolle wenteltrap naar de verdiepingen. Vanuit hier stap je de lichte T-vormige woonkamer binnen, voorzien van een leistenen vloer en grote raampartijen die zorgen voor een prettige hoeveelheid daglicht. De ruimte biedt moeiteloos plaats aan een royale eethoek én een gezellige zithoek.

De keuken is praktisch ingedeeld en van alle gemakken voorzien: een 4-pits gasfornuis, oven, koelkast, vaatwasser en afzuigkap. Dankzij de lichtkoepel geniet je hier van extra daglicht. Via de achterdeur bereik je direct de royale achtertuin. Aansluitend bevindt zich de praktische bijkeuken, ideaal voor witgoed en extra bergruimte.

Eerste verdieping

Op de eerste verdieping zijn drie royale slaapkamers gesitueerd. De badkamer is compleet uitgerust met een ligbad, tweede toilet, wastafel en designradiator – een fijne plek om de dag ontspannen te beginnen of juist af te sluiten.

Tweede verdieping

De tweede verdieping is bereikbaar via een vaste trap en biedt verrassend veel ruimte. Hier bevinden zich de cv-installatie en een royale afgewerkte bergruimte met daglicht.

Tuin

De carport en de garage zijn vanuit de keuken droog te bereiken via de praktische overkapping. 
De verzorgde achtertuin biedt volop privacy en beschikt over extra opslagruimte aan de achterzijde van de woning. Aan de voorzijde vind je een lange oprit met ruimte voor meerdere auto’s. Naast de woning ligt een carport met een zij-ingang, met aansluitend een garage met stalen kantelpoort– ideaal voor opslag, hobby’s of gewoon extra gemak. Achterin de garage is bovendien een tuindeur aanwezig.

Bijzonderheden

- Cv. ketel huur Volta 2022, € 38,-  per maand (contract einde maart 2027)
- Geheel nieuwe kozijnen met HR++ beglazing (2003) grotendeels v.v. rolluiken. (2019)
- Gevels zijn nageïsoleerd
- In 2003 is er een nieuw hoofddak geplaatst met unidek isolatie
- Meterkast groepenkast met 11 stoppen en aardlekschakelaar, dag- en nachtmeter, slimme elektrameter, gasmeter, watermeter

De waarborgsom of bankgarantie bedraagt 10% van de koopsom. De waarborgsom of bankgarantie dient tegelijkertijd met het verlopen van de ontbindende voorwaarden gestort te zijn jegens de betrokken notaris. Indien er geen sprake is van ontbindende voorwaarden, zal het bedrag binnen twee weken na ondertekening van de koopovereenkomst moeten worden gestort op de derdenrekening. Over de waarborgsom dan wel bankgarantie wordt door de verkoper geen rente vergoed.

Corio Makelaars B.V. heeft met de meeste zorg informatie samengesteld doch kunnen we ten aanzien van de juistheid van deze gegevens geen aansprakelijkheid aanvaarden. Aan deze informatie kunnen geen rechten worden ontleend.

Kenmerken