Beschrijving

Herenhuis met maar liefst 268 m² woonoppervlakte gelegen aan de Holzstraat in Kerkrade. In dit statige pand zijn de authentieke elementen nog volop aanwezig, waardoor dit prettige woonhuis heel veel sfeer ademt. De woning beschikt thans over 3 eenvoudige badkamers en 2 keukens, 7 slaapkamers, een inpandige garage, voldoende bergruimte in kelder en op zolder en een zonnige achtertuin met veel privacy.

Gelegen op korte afstand van het centrum van Kerkrade met diverse voorzieningen, winkels, scholen, openbaar vervoer en uitvalswegen.

De woning is GEHEEL TE RENOVEREN EN MODERNISEREN, echter met oneindig potentieel.

Indeling

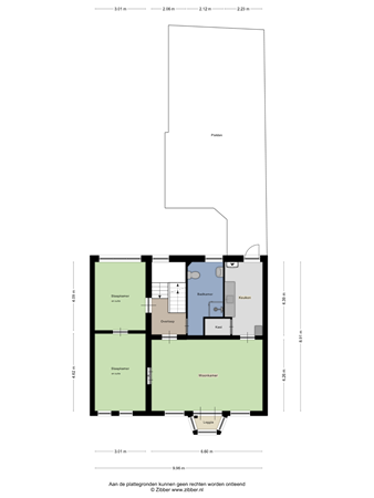
Via de houten poort aan de voorzijde van de woning is de inpandige garage en de entree van de woning te bereiken. 
Vanuit de hal is er toegang tot de woonkamer en eetkamer, het toilet, de kelder en de tuin. Ook is in de hal de trapopgang naar de eerste verdieping te vinden. 
Aansluitend aan de eetkamer zijn in de aanbouw de keuken met toegang tot tuin, badkamer en slaapkamer gelegen.

Eerste verdieping

Deze verdieping is ook voorzien van een keuken en een badkamer. Vanuit de overloop zijn de en suite slaapkamer, de woonkamer en badkamer te bereiken. De woonkamer met sfeervolle erker, geeft toegang tot de gesloten keuken met deur naar ruim dakterras.

Tweede verdieping

Deze verdieping is voorzien van 4 slaapkamers, waarvan een en suite, en een badkamer. Er zijn twee bergzolders die te bereiken zijn middels een losse trap.

Overige verdiepingen

De woning is grotendeels onderkelderd en onderverdeeld in diverse ruimtes.
Tevens is hier de opstelplaats van de c.v.-ketel.

Tuin

De op het zuiden gelegen achtertuin is bereikbaar vanuit de keuken op de begane grond en vanuit de garage middels een houten poort. 
In de tuin staat een grote berging die is onderverdeeld in 3 ruimtes. 
Verder biedt de tuin de nodige privacy.

Bijzonderheden

- GEHEEL TE RENOVEREN EN MODERNISEREN
- Nagenoeg geheel voorzien van houten kozijnen met enkel glas
- Energielabel G

In de koopovereenkomst zal de 'as is, where is' clausule worden opgenomen:

As is, where is”-clausule:
“Koper verklaart dat hij door Verkoper voldoende in de gelegenheid is gesteld om het Verkochte te onderzoeken. Koper koopt het gekochte ‘As is, where is’ en in afwijking op artikel 6.3 van de koopovereenkomst en artikel 7:17 BW komen partijen overeen dat alle feitelijke en juridische gebreken aan het Verkochte, waaronder begrepen doch niet beperkt tot de bouwkundige staat en vergunningen, ongeacht of deze een normaal of bijzonder gebruik van het Verkochte in de weg staan, of het anderszins niet beantwoorden van het Verkochte aan de koopovereenkomst, voor rekening en risico van de Koper komen. Verkoper aanvaardt geen enkele aansprakelijkheid met betrekking tot deze gebreken. In dat kader verklaart Koper dat zij alsmede haar rechtsopvolgers volledig afstand doen van elk recht op ontbinding van de koopovereenkomst (anders dan de ontbindingsgronden als vermeld in de koopovereenkomst) dan wel van het vorderen van schadevergoeding op grond van non-conformiteit.”

De waarborgsom of bankgarantie bedraagt 10% van de koopsom. De waarborgsom of bankgarantie dient tegelijk met het verlopen van de ontbindende voorwaarden gestort te zijn jegens de betrokken notaris. Indien er geen sprake is van ontbindende voorwaarden, zal het bedrag binnen twee weken na ondertekening van de koopovereenkomst moeten worden gestort op de derdenrekening. Over de waarborgsom dan wel bankgarantie wordt door de verkoper geen rente vergoed.

Corio Makelaars B.V. heeft met de meeste zorg informatie samengesteld doch kunnen we ten aanzien van de juistheid van deze gegevens geen aansprakelijkheid aanvaarden. Aan deze informatie kunnen geen rechten worden ontleend.

Kenmerken