Beschrijving

Wees er snel bij! Dit huis is zo’n parel die niet lang te koop zal staan. Wacht niet te lang — een unieke kans om jouw droomhuis te bemachtigen voordat iemand anders het doet!

Welkom aan De Gyselaar 71 in Amstenrade, een verrassend ruime geschakelde 2-onder-1-kap woning waar je je direct thuis zult voelen. De woning is grotendeels recent gerenoveerd o.a. voorzien van een compleet nieuwe keukenopstelling.
Gelegen op een perceel van maar liefst 305 m² en voorzien van vier slaapkamers, een moderne woonkamer met open keuken, garage en grote tuinberging. 

De wijk Amstenrade – Oirsbeek staat bekend om haar rustige, groene karakter. Hier profiteer je van de gemoedelijke sfeer en toch zijn alle belangrijke voorzieningen – scholen, winkels en uitvalswegen – binnen handbereik.

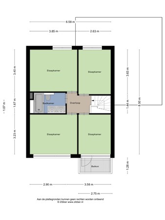
Indeling

Entree/Hal.
Hal met volledig vernieuwde meterkast, toiletruimte en trappenhuis. Via de glazendeur betreed je de moderne woonkamer met open keuken.

De woonkamer is voorzien van een nieuwe pvc visgraatvloer; modern, onderhoudsarm én tijdloos mooi. Voor extra comfort is vloerverwarming aangebracht.
Niet te missen is de moderne keukenopstelling (2023)  met het grote kookeiland. Dit is het kloppend hart van het huis, compleet met een Bora inductiekookplaat, oven met stoom functie, koelkast, vriezer, vaatwasser en voldoende opslagruimte voor al jouw keukenspullen door de vele praktische lades. Een droom voor kookliefhebbers. 
De schuifpui zorgt voor veel licht en een fraai uitzicht op de tuin.

Eerste verdieping

Op de eerste verdieping bevindt zich een ruime overloop met toegang tot maar liefst vier slaapkamers met fijne maatvoering, geheel voorzien van nieuwe pvc vloeren. Dat betekent genoeg speel- en studeerruimte voor iedereen – of werk je juist liever thuis, dan is er snel een werkplek gecreëerd.  
De slaapkamer aan de voorzijde grenst aan een klein balkon.
De badkamer is v.v. een designradiator, ligbad, dubbele wastafel in meubel en een tweede toilet.

Balkon

Het balkon (ca.4m²) geniet van de middag en avond zon.

Tuin

Vanuit de tuin heb je toegang tot de extra brede garage(ca. 23m²) met stalen kantelpoort en loopdeur naar de oprit, hier is de opstelplaats voor het witgoed en de CV- ketel. De voormalige garage (ca. 20m²) in de tuin leent zich perfect voor extra opslag, een klusruimte of misschien wel de ultieme mancave.

Bijzonderheden

- Hoofddak is geïsoleerd en v.v. nieuw bitumen (2024)
- Gevels gereinigd en geïmpregneerd (2025)
- Elektra deels vervangen, nieuw schakelmateriaal en nieuwe meterkast (2023)
- Volledig nieuwe keukenopstelling (2023)
- Geheel nieuwe plafonds met uitzondering van de toiletruimte
- Schuifpui is v.v. HR+ glas, overige kozijnen zijn v.v. dubbel glas
- Begane grond vloer is v.v. nieuwe dekvloer met vloerverwarming
- Kruipruimte toegankelijk via de hal

De waarborgsom of bankgarantie bedraagt 10% van de koopsom. De waarborgsom of bankgarantie dient tegelijkertijd met het verlopen van de ontbindende voorwaarden gestort te zijn jegens de betrokken notaris. Indien er geen sprake is van ontbindende voorwaarden, zal het bedrag binnen twee weken na ondertekening van de koopovereenkomst moeten worden gestort op de derdenrekening. Over de waarborgsom dan wel bankgarantie wordt door de verkoper geen rente vergoed.

Corio Makelaars B.V. heeft met de meeste zorg informatie samengesteld doch kunnen we ten aanzien van de juistheid van deze gegevens geen aansprakelijkheid aanvaarden. Aan deze informatie kunnen geen rechten worden ontleend.

Kenmerken