Beschrijving
Op een zichtlocatie aan de Locht, op loopafstand van de Rodaring en gelegen aan een doorgaande weg, bevinden zich deze twee royale percelen van respectievelijk 1.537 m² en 786 m² met bedrijfsbestemming en bedrijfswoning. Dankzij de combinatie van wonen en bedrijvigheid biedt dit object uitstekende mogelijkheden voor ondernemers die werken aan huis willen combineren met een centrale en goed bereikbare locatie. Op één perceel staat een bedrijfswoning en op het andere perceel bestaat de mogelijkheid tot het realiseren van een bedrijfswoning, waardoor beide percelen zowel samen als ook afzonderlijk gebruikt en ontwikkeld kunnen worden.
De vrijstaande bedrijfswoning heeft een woonoppervlakte van circa 172 m² en beschikt over een souterrain, aanbouw, zolderverdieping en een ruim achterperceel met diverse opstallen. Het geheel dient volledig gemoderniseerd en gerenoveerd te worden, maar biedt juist daardoor een uitgelezen kans om het object geheel naar eigen inzicht en wens te transformeren.
Let op: op het perceel is momenteel nog geen bedrijfsloods aanwezig, uitsluitend een bedrijfswoning. De percelen bieden echter ruime mogelijkheden voor het realiseren van een bedrijfsloods. Het betreft twee percelen die uitsluitend gezamenlijk worden verkocht.
Indeling
Begane grond
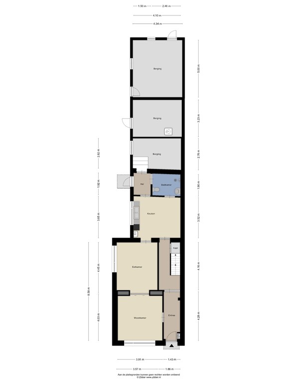
Via de entree bereikt u de hal met betegelde vloer en moderne meterkast.
De woonkamer is voorzien van een eikenhouten vloer en staat middels een schuifdeur in verbinding met de eetkamer samen circa 32 m².
In de aanbouw (jaren ’60) bevindt zich een ruime betegelde keukenruimte van circa 15 m² met wasbak en opstelling van de CV-installatie. Aansluitend ligt de badkamer circa 5 m², voorzien van:
• Douche
• Toilet
• Wastafel
• Mechanische ventilatie
Via de zij-ingang bereikt u een portaal met toegang tot de keuken, badkamer en een aansluitende berging.
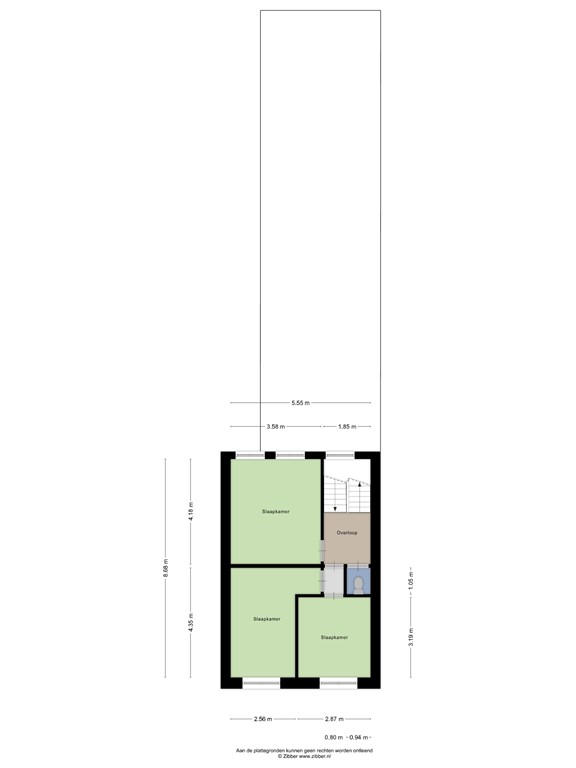
Eerste verdieping
De eerste verdieping beschikt over:
• Overloop
• Drie slaapkamers van circa 15 m², 12 m² en 9 m²
• Separaat toilet met ventilatie
De verdiepingsvloeren zijn uitgevoerd in hout. Originele paneeldeuren zijn grotendeels behouden gebleven en de hoge plafonds versterken het karakter van de woning.
Tweede verdieping
Via een vaste trap is de tweede verdieping bereikbaar. Hier bevinden zich:
• Een overloop
• Een grote zolderruimte
• Eén verwarmde (slaap)kamer van circa 9 m²
Het dak bestaat uit een houten dakconstructie. Daarnaast is er nog een kleine vide aanwezig, welke bereikbaar is via een losse trap.
Overige verdiepingen
Souterrain
Het oorspronkelijke woonhuis is volledig onderkelderd. De ruime gewelfde kelder, inclusief voormalige stookkelder, beschikt over:
• Wateraansluiting
• Watermeter
• Natuurlijke ventilatie via ramen
Tuin
Terrein en bijgebouwen
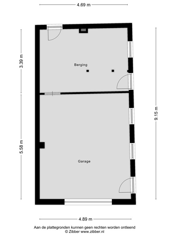
Achter en naast de woning liggen twee royale percelen met diverse opstallen, waaronder:
• Vrijstaande bakstenen garage ca. 44 m²
• Gemetselde bergingen ca. 30 m², 14 m² en 21 m²
• Diverse schuurtjes ca. 38 m² en 12 m²
Ook deze bijgebouwen verkeren in eenvoudige staat en vragen modernisering, maar bieden uitstekende mogelijkheden voor opslag, hobby of bedrijfsmatig gebruik.
Er zijn ruime parkeermogelijkheden aanwezig en/of te realiseren op eigen terrein. In de tuin bevindt zich tevens een gehuurde gastank.
Bijzonderheden
• 2 losse percelen met bedrijfsbestemming
• Bedrijfswoning van ca. 172 m²
• Volledig onderkelderd woonhuis
• Diverse bijgebouwen en ruime garage
• Zichtlocatie aan doorgaande weg
• Goede bereikbaarheid
• Object dient volledig gemoderniseerd en gerenoveerd (bijv. lekkende dakgoot voor- en achterzijde) te worden
• Veel potentie voor combinatie wonen/werken
• Trappenhuis is behangen met bakstenenmotief
• Energielabel G
• Meterkast met 5 groepen, aardlekschakelaar, hoofdschakelaar en slimme meter
• cv-ketel Vaillant ca. 2016 eigendom
• Gehuurde propaantank in tuin aanwezig
• De voormalige olietank is verwijderd (saneringscertificaat aanwezig).
Plattegronden
182365072_1627339_locht_begane_grond_first_design_20260217_0faa15.jpg
182365072_1627339_locht_tweede_verdiepi_first_design_20260217_ed7101.jpg
182365072_1627339_locht_eerste_verdiepi_first_design_20260217_e624d9.jpg
182365072_1627339_locht_zolder_first_design_20260217_9ab114.jpg
182365072_1627339_locht_souterrain_first_design_20260217_07655f.jpg
182365072_1627339_locht_garage_first_design_20260217_0a99ce.jpg